
AE house
800 m2 House
Lomas de Chapultepec, Mexico City
AE house is an exploration on privacy and materiality, the house is situated in Lomas de Chapultepec, in Mexico City, and consists of three levels placed on a 800 m2 / 8´611 sq ft site. The house uses the restrictions in the urban plan to its advantage in the placement of the internal spaces, challenging the typical configurations of similar plots in the area. The project offers an alternative to the centralized volumes that are closed and devoid of interaction to their sites and looking outwards through wall enclosed patios.















The proposal of the project changes this interaction by displacing a thick volume to the back of the site while a thin volume is pulled forward, creating by such an action a cross diagram that allows for patios to emerge with views, illumination and natural ventilation of the spaces. The intersection of both volumes creates a central void where the connection between the different volumes opens up to the sky.
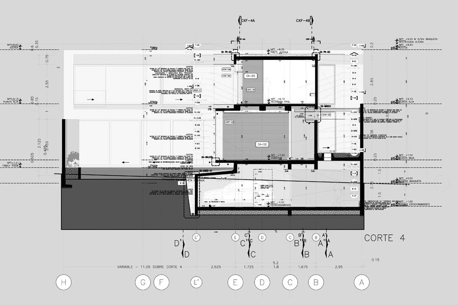
The scheme is defined further by lifting the back volume and creating a family living room that becomes the most interesting space of the house, placed in between the frontal garden and a back gravel patio. In this space the full length of 40 mts / 131 ft of the site can be experienced, establishing an everyday relationship between the inside spaces and the external landscaped garden.




The placement of spaces follows the functional requirements of the clients with three living spaces clearly defined while aspiring to create a simple and clear scheme of organization. A social area at the entrance to the house is contained within a white concrete box that opens laterally to the elongated garden, and backwards to a flooded patio, while being fluently open to the circulation within the house. The kitchen and services are placed in a position in which they relate to both the formal and the everyday dining spaces.
The family room perpendicular to the first block performs many functions for the everyday life of the family and in this sense it was the desire of the clients to become one of the main drivers of the project, expressing a new way of living. The private area in the third floor consists of bedrooms which because of the placement of the house acquire views and long perspectives to the lush vegetation of the area defined by Jacarandas and Palm trees. The services are placed in the basement in a functional arrangement while In the lower floor, privacy is negotiated by walls and wooden sliding doors that allow for a filtering of spatial qualities. In the upper floor the position of the house as a cross allows for privacy in the bedrooms within the site as it exposes a minimum front towards the street.
Orientation, views and privacy are the main forces that define the form, while the sensual and aesthetic conditions of the materials employed explore the tectonic interaction between the spaces created by the intersection of spaces and volumes. The project aspired to create a house where the interaction of this forces provoke a sensual and emotional experience of different spatial conditions.
We aspired to create an elegant solution to the condition of habitability integrating the garden to the house in a way in which the family room becomes part of the garden landscape, creating a casual space that is open, serene and integrated to the exterior in a way in which contrasts with the daily experience of the city.
















PROJECT MATERIALITY
The house is placed on a 20 by 40m / 131 by 65 ft plot with an area of 800 m2 / 8´611 sq ft site and contains a similar built area in 3 levels. The idea of the house is to work with a simple set of few materials but with a mix of textures and qualities to match the sensuality of the different inhabitable spaces. The volumes are negotiated through these materials and their qualities, the interaction of the volumes and materials of the house follow a tectonic idea of intersections, displacements and shifts of volumes.
The most challenging fabrication and manufacturing technique of the house was the in site casting of white concrete walls and ceilings with the 4” wood texture and managing the continuity of the material to flow into the details and construction of wooden doors and carpentry, continuing the texture and creating an interesting contrast. The social area is contained in this envelope of white concrete cast in site with wood texture, while the dining room is enclosed in a smaller box of wooden floor, walls and ceiling. This contrasts allows for a continuity through texture with the 4” walnut wood panels in the dining room, doors and walk-in closets.
The entrance and the formal spaces floor is covered by 2” travertine marble slabs of 1.22 X 2.44 m / 4 ft x 8 ft. In the upper level and family room 10” walnut planks cover the floor with the same material as wall panels and doors, the difference between materials was used for a different ambiance. Meanwhile the full height arabescato marble slabs in the bathrooms contrast in form, color and texture with the wooden spaces while creating an elegant spatial definition.











..........................................................................................................................................................................................................
casa AE / AE house
Lomas de Chapultepec, Mexico City
área / area: 800 m2 / 8´611 sqft
colaboradores / collaborators : David Mandujano
interiores no fijos y decoración / Non fixed interior design and decoration: Pablo Sepulveda
ingeniería estructural / structural engineering: Jorge Cadena
construcción / construction: Alpha-Hardin 2008-2010
fotografía / photography: Pim Shalkwijk
proyecto / design 2007-2009
Arte en la escalera y estudio es de Santiago Borja / Art in the staircase and studio is by Santiago Borja.
publicado / published:
2011.10 "La Revista", tercer aniversario 11 oficinas con proyección internacional / 3rd anniversary issue, 11 mexican offices with international projection.
2011.04 archdaily "AE House / twentyfourseven"
2011.04 plataforma arquitectura "Casa AE / twentyfourseven"
2012.02 contemporist "AE House by twentyfourseven"
expuesto / exhibited:
2011.11 "Breaking Borders: New Latin American Architecture"
Robert and Hazel Siegel Gallery in Pratt Institute School of Architecture, New York.